Picity Sky Park

Dĩ An

Trạng thái:
Sắp mở bán
Loại hình:
Shophouse Căn hộ
Số block:
2
Số tầng:
39
Số căn:
1,262
Giá: Đang cập nhật

Chúng tôi luôn sẵn sàng giải đáp cho bạn vì chúng tôi hoạt động 24/7

Đoàn Thị Ly Ly Trâm Sales Executive
Đoàn Thị Ly Ly Trâm

Real Estate Consultant

Giới thiệu Picity Sky Park

Picity Sky Park là dự án căn hộ chung cư mới nhất của Pi Group tại Bình Dương. Dự án nằm cách ngã 4 cầu vượt Linh Xuân (TP.HCM) chỉ 700m.

Thông tin tổng quan dự án Picity Sky Park Dĩ An

Tên dự án: Picity Sky Park
Chủ đầu tư: Công ty cổ phần Đầu tư phát triển Pi Group (Tập đoàn Pi Group)
Vị trí: Quốc lộ 1A, phường An Bình, thành phố Dĩ An, tỉnh Bình Dương
Loại hình: Căn hộ
Tổng diện tích: 10.615,9m2
Mật độ xây dựng: 53,32%
Quy mô: 2 block cao 39 tầng, thiết kế khối đế 6 tầng và khối tháp là 33 tầng
Số lượng căn hộ: 1.262 căn hộ và 28 căn shophouse
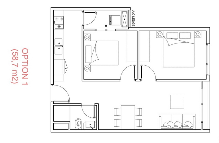
Diện tích căn hộ: 35 – 45m2 (1 - 3 phòng ngủ)
Hình thức pháp lý: Người Việt Nam sử dụng lâu dài, người nước ngoài sử dụng 50 năm
Ngày khởi công: Quý IV/2021
Năm hoàn thành dự kiến: Quý IV/2023

Vị trí dự án Picity Sky Park Dĩ An

Picity Sky Park là dự án căn hộ chung cư tọa lạc trên Quốc lộ 1A, phường An Bình, TP. Dĩ An, tỉnh Bình Dương. Dự án Picity Sky Park nằm cách ngã 4 cầu vượt Linh Xuân (TP.HCM) chỉ 700m.

Nhờ đó, vị trí dự án Picity Sky Park Dĩ An có được sự kết nối mạnh mẽ về hạ tầng giao thông nơi đây, thuận tiện di chuyển giữa TP.HCM và Bình Dương, điều mà rất ít dự án tại thị trường căn hộ Bình Dương có được.

Tiện ích nội khu dự án Picity Sky Park Dĩ An

Nội khu dự án Picity Sky Park Dĩ An được tích hợp nhiều tiện ích nội khu hiện đại như hồ bơi tràn bờ Sky Park tầng 40, khu picnic, khu BBQ, khu chụp ảnh check-in, phòng gym, sân vận động thể thao đa năng, đường dạo bộ.

Bên cạnh đó, các căn hộ tại dự án Picity Sky Park Dĩ An còn được trang bị ứng dụng công nghệ Smart Home giúp nâng cao chất lượng sống của mỗi cư dân, dễ dàng điều khiển, quản lý các thiết bị trong căn hộ, thông báo cảm biến an ninh, cảm biến thông số môi trường, hứa hẹn mang đến cho cư dân một nơi an cư lý tưởng.

Tiện ích ngoại khu dự án Picity Sky Park Dĩ An

Cư dân sinh sống tại chung cư Picity Sky Park Dĩ An còn được hưởng lợi bởi loạt tiện ích hiện hữu của địa phương như trung tâm hành chính

- Sân vận động Dĩ An
- Nhà ga metro số 1
- Chợ Dĩ An
- Vincom Dĩ An
- Chợ Việt Lập
- Khu du lịch Suối Tiên
- Chợ Đêm An Bình
- Bệnh viện quốc tế Hoàn Mỹ
- Bệnh viện quốc tế Hạnh Phúc
- Bệnh viên Ung bướu 2
- Bệnh viện Đa khoa Hoàn Hảo Hội Sở
- Trường THPT Đào Sơn Tây, Ký túc xá Khu B Đại học Quốc gia TP.HCM
- Aeon Mall Bình Dương…

Thông tin chi tiết Picity Sky Park

  • Diện tích

    10,615 m²

  • Thời gian xây dựng

    09/2021

  • Thời gian giao nhà

    10/2023

  • Số block

    2

  • Số tầng

    39

  • Số căn hộ

    1,262

  • Số shophouse

    28

  • Mật độ xây dựng (%)

    53.32

Tiện ích Picity Sky Park

  • Chỗ đậu xe
  • Sân nướng BBQ
  • Thang máy
  • Hồ bơi
  • Phòng sinh hoạt cộng đồng
  • Phòng tập gym
  • Công viên
  • Bảo vệ 24/7
  • Sân chơi trẻ em
  • Sảnh lễ tân
  • Khu chạy bộ
  • Khu thể thao ngoài trời

Vị trí dự án Picity Sky Park

Map
An Bình, Dĩ An, Bình Dương

Tính vay mua nhà

Lưu ý: Thông tin dự án này được Rever tổng hợp từ nhiều nguồn khác nhau. Tuy nhiên, dự án có thể thay đổi nhiều thông tin qua thời gian do chủ đầu tư hoặc cơ quan chức năng nên sẽ có những thông tin chưa được chúng tôi cập nhật kịp thời. Vì vậy, bạn đọc và khách hàng dự án chỉ xem đây là nguồn tham khảo. Rever không chịu trách nhiệm gì đối với bất kỳ thiệt hại trực tiếp hay do hậu quả phát sinh từ việc sử dụng thông tin này.